Aktuálně můžete v lokalitě Hradec Králové vybírat z nabídky 23 domů.
Přehled nemovitostí: prodej domy > rodinné domy Zpět na přehled nabídek

Novostavba rodinného domu 5+kk Vamberk

901 m2

neuvedeno

C - Úsporná

N13422

Cena: 8880000 CZK / objekt

Poslat dotaz k nabídce
Zásady používání osobních údajů

Prodejce

Makléř: Luboš Doležal

Telefon: 800 400 ...

E-mail: info@pi ...

Zobrazit celý kontakt

Nemovitost nabízí

PINK REALITY, s.r.o.

Javornická 1581, 516 01 Rychnov nad Kněžnou

www.pinkreality.cz

Zobrazit kontakt na RK

Zobrazit všechny nabídky RK

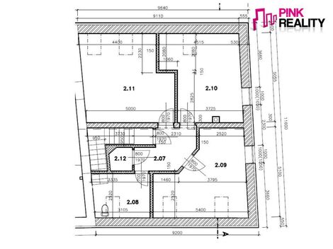
Nabízíme novostavbu rodinného domu 5+kk v obci Vamberk. V přízemí domu se nachází obývací pokoj, ve kterém je komín, dále jídelna s kuchyní, pokoj pro hosty, technická místnost, koupelna s vanou a WC, komora a chodba se schodištěm, ve druhém nadzemním podlaží je ložnice, dva dětské pokoje (v jednom z nich je přivedena voda, elektřina a odpad pro možnost vybudování druhé kuchyně), dále je zde druhá koupelna se sprchovým koutem a WC, komora a chodba. Dům je napojený na elektřinu, kanalizaci, obecní vodovod a je vytápěný tepelným čerpadlem s podlahovým topením. Kupujícímu bude prodán podíl 1/2 pozemku sloužící jako příjezdová komunikace. Předpokládaný termín kolaudace je léto 2025. Pro více informací či prohlídku kontaktujte naši bezplatnou linku. <a href="https://www.eurobydleni.cz/byty/2_kk/zdar-nad-sazavou/obec-nove-mesto-na-morave/prodej/"><strong>Prodej bytu 2+kk Nové Město na Moravě</strong></a>




Prodej rodinného domu Vamberk na Eurobydleni.cz


Nahoru