Aktuálně můžete v lokalitě Hradec Králové vybírat z nabídky 35 domů.
Přehled nemovitostí: prodej domy > rodinné domy Zpět na přehled nabídek

Moderní nízkonákladový rodinný dům 4+kk, Solnice Kvasiny (dům č. 1)

322 m2

95 m2

osobní

A - Mimořádně úsporná

B960042

Cena: 6490000 CZK / objekt
Poznámka k ceně: Akční cena předprodejní akce. 1

Poslat dotaz k nabídce
Zásady používání osobních údajů

Prodejce

Makléř: Bc. Šťastná Kateřina

Telefon: 226 256 ...

E-mail: info.re ...

Zobrazit celý kontakt

Nemovitost nabízí

CENTURY 21 4fin Reality

Na Hřebenech II 1718/8, 140 00 Praha 4

www.4finreality.cz

Zobrazit kontakt na RK

Zobrazit všechny nabídky RK

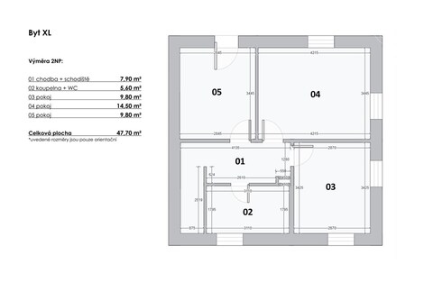
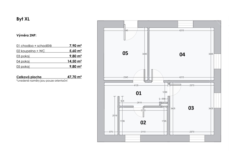
Moderní a vysoce úsporný rodinný dům v obci Solnice Kvasiny Hledáte klidné, moderní a ekologické bydlení? Tak zbystřete! V oblíbené a klidné lokalitě Solnice Kvasiny na vás čeká novostavba rodinného domu 4+kk o podlahové ploše 95 m2, postavená na pozemku 322 m2. Tento nízkoenergetický dům s hodnocením PENB A kombinuje stylovou architekturu s kvalitními materiály včetně perfektního zateplení. To vše doplněné solárními panely, které šetří vaši peněženku i planetu. Dispozice 4+kk je ideální pro mladou rodinu nebo pár, kteří chtějí klidné a pohodové bydlení. Efektivní dvě podlaží znamenají přirozené oddělení denní a noční části domu. ‍ ✨ Vychytávky, které si zamilujete: ✅ Možnost čerpání dotace Zelená úsporám až do výše 400.000 Kč - usnadní vám cestu k vlastnímu bydlení ✅ Soukromé parkovací stání přímo u domu ✅ Dům je obklopen malebnou zelení i blízkým rybníkem Lokalita, která má co nabídnout: 5 minut autem do Škoda Auto Kvasiny - ideální pro zaměstnance Vše potřebné po ruce - obchody, školka, škola, MHD i vlak Klidná a bezpečná ulice - ideální pro děti i domácí mazlíčky ‍‍‍‍ Nyní akční cena v rámci předprodeje. Za tuhle cenu získáte pohodové, zdravé a úsporné bydlení v krásné přírodě. Zavolejte mi nebo napište a domluvíme si prohlídku. Domy v této lokalitě se neohřejí dlouho!



Nahoru