Makléř: Vacek Pavel
Telefon: 776 761 ...
E-mail: pavel.v ...
Zobrazit celý kontaktTelefon: 776 761 391
E-mail: pavel.vacek@lord.cz
Nemovitost nabízí
LORD - realitní kancelář spol. s r.o.
Hořická 976/5, 500 02 Hradec Králové
Zobrazit kontakt na RK495 533 509
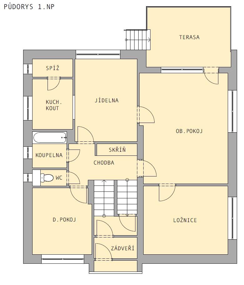
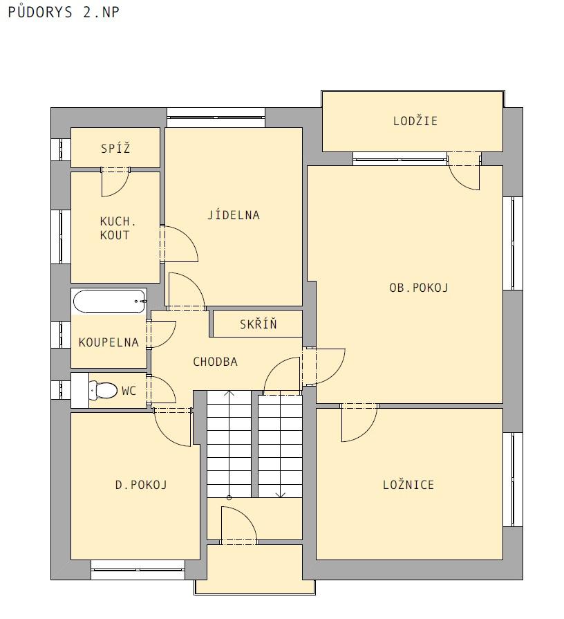
Rodinný dům 15 minut jízdy autem od Hradce Králové, obec Hoříněves, klidné místo, slepá ulice, celková plocha pozemku 553 m2, 2 bytové jednotky, terasa, lodgie, podsklepeno, garáž, dílna, kotelna, prádelna, v obci občanská vybavenost. Jedná se o rodinný dům se dvěma bytovými jednotkami 4+1, společný vchod do domu a chodba. Dům je možné užívat jako velkorysé bydlení pro větší rodinu, jako dvougenerační bydlení nebo jako dvě samostatné bytové jednotky. Topení v domě řešeno jako ústřední s kotlem na tuhá paliva, ohřev vody elektrickým bojlerem, dům napojen na obecní vodovod a odpady svedeny do jímky, plynová přípojka v domě. Na domě proběhly před cca. 20 lety částečné úpravy (výměna oken, vchodových dveří a garážových vrat, dále pak k zateplení střechy včetně nové lepenkové krytiny). Na ostatních částech domu je prováděna spíše základní údržba. Místo je vhodné pro rodinu s dětmi, obec nabízí velmi důležitou občanskou vybavenost (škola, školka, obchod, restaurace, obecní sportovní hřiště, vlakové i autobusové spojení. Výhody - pěkná zahrada - klidné místo, občanská vybavenost - dvě samostatné jednotky - možnost čerpání dotací na rekostrukci - v zástavbě rodinných domů - 15 minut od Hradce Králové Nevýhody - jímka na pozemku jiného vlastníka, nicméně řešeno věcným břemenem - topení na tuhá paliva - potřeba dalších investic Pro více informací a prohlídku domu kontaktujte prosím naši kancelář. <a href="https://www.eurobydleni.cz/byty/2_kk/kolin/obec-velim/prodej/"><strong>Prodej bytu 2+kk Velim</strong></a>
Prodej, Rodinný dům, Smržov
Nabízíme k prodeji rodinný dům nacházející se v obci Smržov, v okrese Hradec Králové, k.ú. Smržov u Smiřic. Tento samostatně stojící dům má …
K PRODEJI | RD UP 106 M2 | Lužec nad Cidlinou| Pozemek 1000 M2 | | Stodola | Lukáš Průcha
Prodej rodinného domu 3+kk, 120 m, pozemek 1 000 m Lužec nad Cidlinou Nabízím k prodeji rodinný dům o dispozici 3+kk s užitnou plochou cca 120 m,…
Prodej rodinného domu Hořiněves na Eurobydleni.cz