Makléř: Ing. Kotek Petr
Telefon: 777 043 ...
E-mail: kotek.p ...
Zobrazit celý kontaktTelefon: 777 043 010
E-mail: kotek.petr@rako-reality.cz
Nemovitost nabízí
RAKO reality IN s.r.o.
Palackého 89/, 54101 Trutnov
Zobrazit kontakt na RK608 883 011
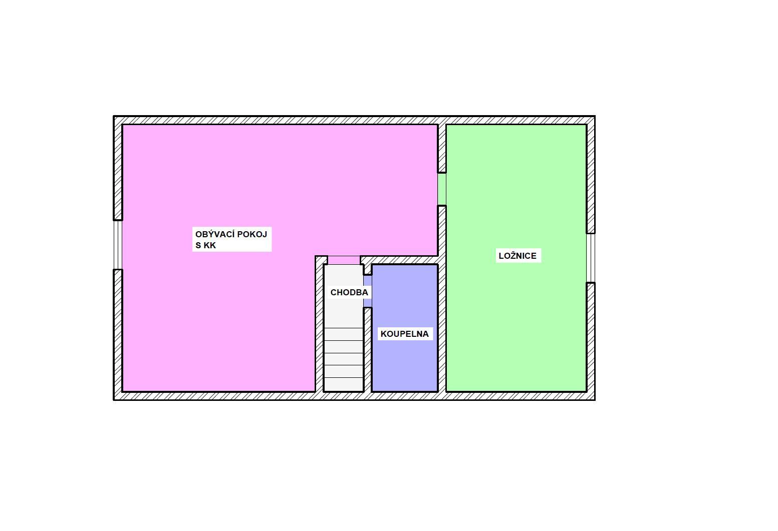
Dovolujeme si Vám nabídnout k prodeji rodinný dům typu OKÁL, který se nachází v lukrativní lokalitě, města Smiřice nedaleko Hradce Králové. Bydlení ve Smiřicích je ideální volbou pro ty, kteří hledají klidné a bezpečné prostředí s možností rychlého dojezdu do Hradce Králové. Město nabízí kvalitní zázemí pro rodiny, jednotlivce i seniory a díky své poloze je vhodné i pro každodenní dojíždění za prací či studiem. K prodeji nabízíme samostatně stojící rodinný dům, který je součástí obytné zóny s obdobnou zástavbou rodinných domů. Pozemek zahrada obklopující dům má výměru vč. zastavěné plochy 802 m2, což je ideální velikost na údržbu a relaxaci. Dům je aktuálně řešený jako dvougenerační, lze jej však využít jako jednogenerační pro vícečlennou rodinu. Město Smiřice se nachází v okrese Hradec Králové, přibližně 10 kilometrů severně od krajského města. Díky své poloze na hlavním železničním tahu mezi Hradcem Králové a Jaroměří nabízí Smiřice výbornou dopravní dostupnost nejen do Hradce Králové, ale i do dalších měst v regionu. Atraktivitu lokality zvyšuje také blízkost dálnice D11, která umožňuje rychlé spojení s Prahou i dalšími částmi republiky. Smiřice jsou městem s bohatou historií a příjemnou atmosférou menšího města, které však nabízí veškerou základní občanskou vybavenost (MŠ, ZŠ, zdravotní středisko, lékárna, pošta, knihovnu, několik obchodů, restaurací i sportovišť). Pro rodiny s dětmi je velkou výhodou klidné prostředí, dostatek zeleně a možnost aktivního trávení volného času v okolní přírodě, například v blízkosti řeky Labe. Dispozice: přízemí domu tvoří garáž (18 m2), která je součástí stavby a dále technické prostory, prádelna (9,5 m2), sušárna (15,2 m2), tech. místnost (25,3 m2), úložný prostor (9,7m2). Do těchto prostor je vstup jednak přímo z domu a také z boční části domu. 1.NP tvoří předsíň (2 m2), po levé straně šatna (1,6 m2). Za šatnou je po levé straně umístěna kuchyň s jídelním koutem 15,4 m2), která navazuje na obývací pokoj (25 m2), který má vstup na terásku. Dominantou obývacího pokoje jsou krbová kamna. Z chodby (10,6 m2) se dále dostaneme do tří samostatných ložnice (9,4 m2, 17,6 m2 a 15,2 m2). V tomto podlaží je také koupelna s WC (5,9 m2). Do 2.NP se dostaneme schodištěm poblíž hlavních dveří. Tam s nachází samostatné jednotka s dispozicí 2+kk (obývací pokoj s kuchyňským koutem 37,9 m2 a ložnice 21 m2), dále koupelna (5,2 m2). Technický popis: Jedná se dům se třemi podlažími. Podzemní spíše technické podlaží se rozprostírá pod celým půdorysem domu a stojí na betonových základech stavby a je vyzděné z cihel. Najdeme zde veškeré technické vybavení a skladovací prostory jako je kotelna, prádelna, sklad potravin, prádelna, garáž apod. Stropní konstrukce v tomto podlaží je tvořená betonovou stropní deskou a podlahy v tomto podlaží jsou betonové. Schodiště do prvního patra je podezděné a jednotlivé stupně jsou tvořeny z betonových PZD desek. Nadzemní obytná část rodinného domu je dřevěná. První nadzemní podlaží je dispozičně řešeno jako 4+kk. Svislé nosné konstrukce jsou vyrobeny z dřevěných trámků v kombinaci s cementotřískovými deskami. Tyto desky jsou poté opatřeny výmalbou nebo otapetovány. Stropní konstrukce prvního nadzemního podlaží je tvořena roštem z dřevěných fošen zakrytých dřevotřískovými deskami, které ve druhém nadzemní podlaží tvoří pochozí vrstvu. Schodiště do druhého nadzemního podlaží je celodřevěné. Druhé obytné nadzemní podlaží je řešeno jako jednotka 2+kk s příslušenstvím je zde prostorný obývací pokoj s kuchyňskou linkou, jeden samostatný pokoj a koupelna. Střešní konstrukci tvoří dřevěné krokve. Střešní krytina je z keramických tašek. Obě obytné podlaží nejsou technicky rozděleny jeden zdroj tepla, jeden vodoměr a jeden elektroměr dohromady pro obě. Dům byl dodatečně zateplen přibližně před 15 lety polystyrenovými deskami EPS tl.: 100 mm a novou fasádní omítkou. Okna (izolační dvojsklo) i dveře jsou původní dřevěné. Podlahové krytiny v domě jsou koberce, dřevěná prkna nebo dlažba. Okolo domu, a hlavně za domem, se rozprostírá velmi pěkná udržovaná zahrada se spoustou okrasných květin a keřů. Původní majitelka byla totiž byla vášnivá zahradnice. Na zahradě je dále k dispozici menší dřevěná pergola s venkovním grilem a zpevněnou podlahou. Dále na zahradě najdeme menší zahradní domek, který dříve sloužil slepicím, nyní je využíván jako sklad zahradního nářadí. Rodinný dům je ve vynikajícím, udržovaném stavu s možností okamžitého bydlení. Příslušenství: menší terásku se vstupem z obývacího pokoje, dřevěný přístřešek na sušení prádla, zahradní chatka úložný prostor, kryté venkovní sezení letní kuchyň. Inženýrské sítě / přípojky: elektřina (hliník) - 220/380 V, voda (ocel) veřejný řád, odpady (litina) napojení na veřejnou kanalizaci, plyn (ocel) veřejný řád. Vytápění domu plynový kotel nebo krb na TP, ohřev vody zajišťuje kombinovaný bojler. PENB se v současné době vyhotovuje, proto prozatím uvádíme G. <a href="https://www.eurobydleni.cz/byty/3_kk/beroun/obec-vysoky-ujezd/prodej/"><strong>Prodej bytu 3+kk Vysoký Újezd</strong></a>
Prodej, rodinný dům, 150m2, Smiřice
Nabízíme k prodeji prostorný rodinný dům o dispozici 4+1 a podlahové ploše 150 m, který se nachází v klidné části města Smiřice. Dům je ideální pro…
Prodej rodinného domu 5+kk, Smiřice - Rodov
Někdy nehledáte jen dům. Hledáte místo, kde se vám bude dobře žít. V obci Rodov u Smiřic nabízíme k prodeji nový, moderní rodinný dům o dispozici 5…
Prodej rodinného domu Smiřice na Eurobydleni.cz