Makléř: Ing. Petr Seidel
Telefon: 607 871 ...
E-mail: pseidel ...
Zobrazit celý kontaktTelefon: 607 871 494, 607 871 494
E-mail: pseidel@hvbreal.cz
Nemovitost nabízí
HVB Real Estate s.r.o.
Korunní 1310/56, 120 00 Praha - Vinohrady
Zobrazit kontakt na RK602 200 907
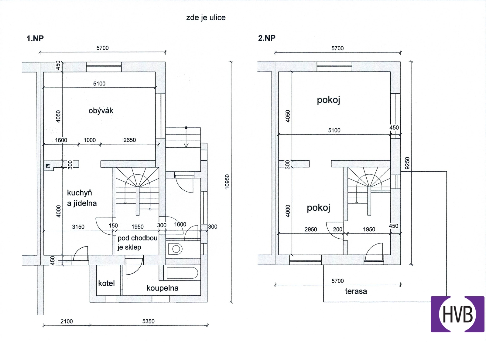
Nabízíme k prodeji rodinný dům 3+1, 101m2, na pozemku 499m2, lokalita Hradec Králové - Svobodné Dvory, ulice Nová. Jedná se o dvoupodlažní dům kolaudovaný v 50. letech minulého století, rekonstruován před cca 10 ti lety. V přízemí se nachází velký obývací pokoj a velká jídelna se vstupem na zahradu, vstupní prostor, dále koupelna s vanou, místnost pro kotel a chodba se schodišti do sklepa a do 2.NP. Ve 2.NP se nachází dva pokoje a chodba. Část domu je podsklepená. Součástí domu je větší zděná garáž s dílnou a zděná kůlna. Za těmito stavbami se se nachází klidná zahrada cca 200m2. Nemovitost se nachází v klidné oblasti krajského města v okolní zástavbě RD a luk. Možnost financovat hypotékou, výhodně vyřídíme. Bližší info telefonicky nebo mailem.
Prodej rodinného domu, 129 m2, Hradec Králové, ul. Kladská
Prodej rodinného domu o užitné ploše 129 m2 v Hradci Králové, ul. Kladská. Dům prošel rekonstrukcí v roce 2000 a další úpravy proběhly v roce 2023.…
Prodej domu s více byty, garážemi a pozemkem k výstavbě v Hradci Králové - Kukleny
Do prodeje uveřejňujeme zděný rodinný dům z r. 1986 vhodný pro bydlení více generací naráz. Nemovitost je umístěna v příjemné vilové čtvrti s…