Makléř: Ing. Petr Seidel
Telefon: 607 871 ...
E-mail: pseidel ...
Zobrazit celý kontaktTelefon: 607 871 494, 607 871 494
E-mail: pseidel@hvbreal.cz
Nemovitost nabízí
HVB Real Estate s.r.o.
Korunní 1310/56, 120 00 Praha - Vinohrady
Zobrazit kontakt na RK602 200 907
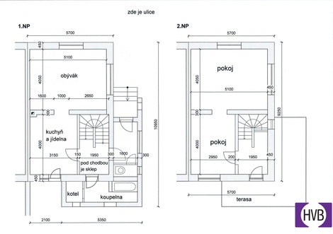
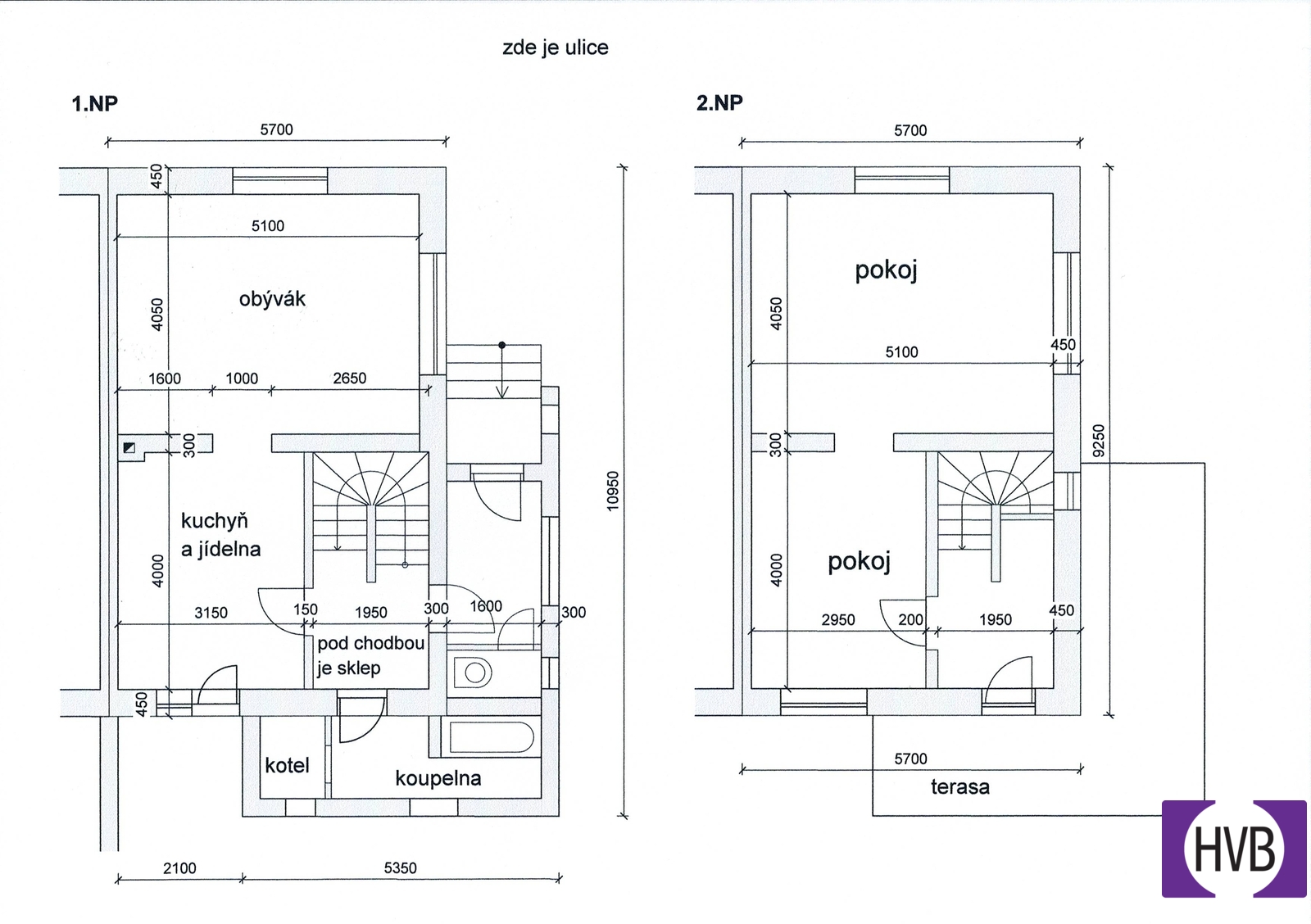
Nabízíme k prodeji rodinný dům 3+1, 101m2, na pozemku 499m2, lokalita Hradec Králové - Svobodné Dvory, ulice Nová. Jedná se o dvoupodlažní dům kolaudovaný v 50. letech minulého století, rekonstruován před cca 10 ti lety. V přízemí se nachází velký obývací pokoj a velká jídelna se vstupem na zahradu, vstupní prostor, dále koupelna s vanou, místnost pro kotel a chodba se schodišti do sklepa a do 2.NP. Ve 2.NP se nachází dva pokoje a chodba. Část domu je podsklepená. Součástí domu je větší zděná garáž s dílnou a zděná kůlna. Za těmito stavbami se se nachází klidná zahrada cca 200m2. Nemovitost se nachází v klidné oblasti krajského města v okolní zástavbě RD a luk. Možnost financovat hypotékou, výhodně vyřídíme. Bližší info telefonicky nebo mailem.
Prodej krásného rodinného domu se zahradou v Plotišti nad Labem
V obci Plotiště nad Labem, nedaleko od Hradce Králové, se nabízí k prodeji krásný rodinný dům s prostornou zahradou. Tento dům je ideální volbou pro…
Prodej rodinného domu, 159 m2, Hradec Králové, ul. U Cihelny
Nabízíme k prodeji vícegenerační rodinný dům o užitné ploše 159 m2 v klidné, slepé ulici v žádané lokalitě Svobodné Dvory v Hradci Králové. Dům je…