Makléř: Bohumil Kopejsko
Telefon: 800 103 ...
E-mail: zakazni ...
Zobrazit celý kontaktTelefon: 800 103 010, 800 103 010
E-mail: zakaznicky.servis@rksting.cz
Nemovitost nabízí
Realitní kancelář STING, s.r.o.
1.máje 540, 739 61 Třinec
Zobrazit kontakt na RK800 103 010
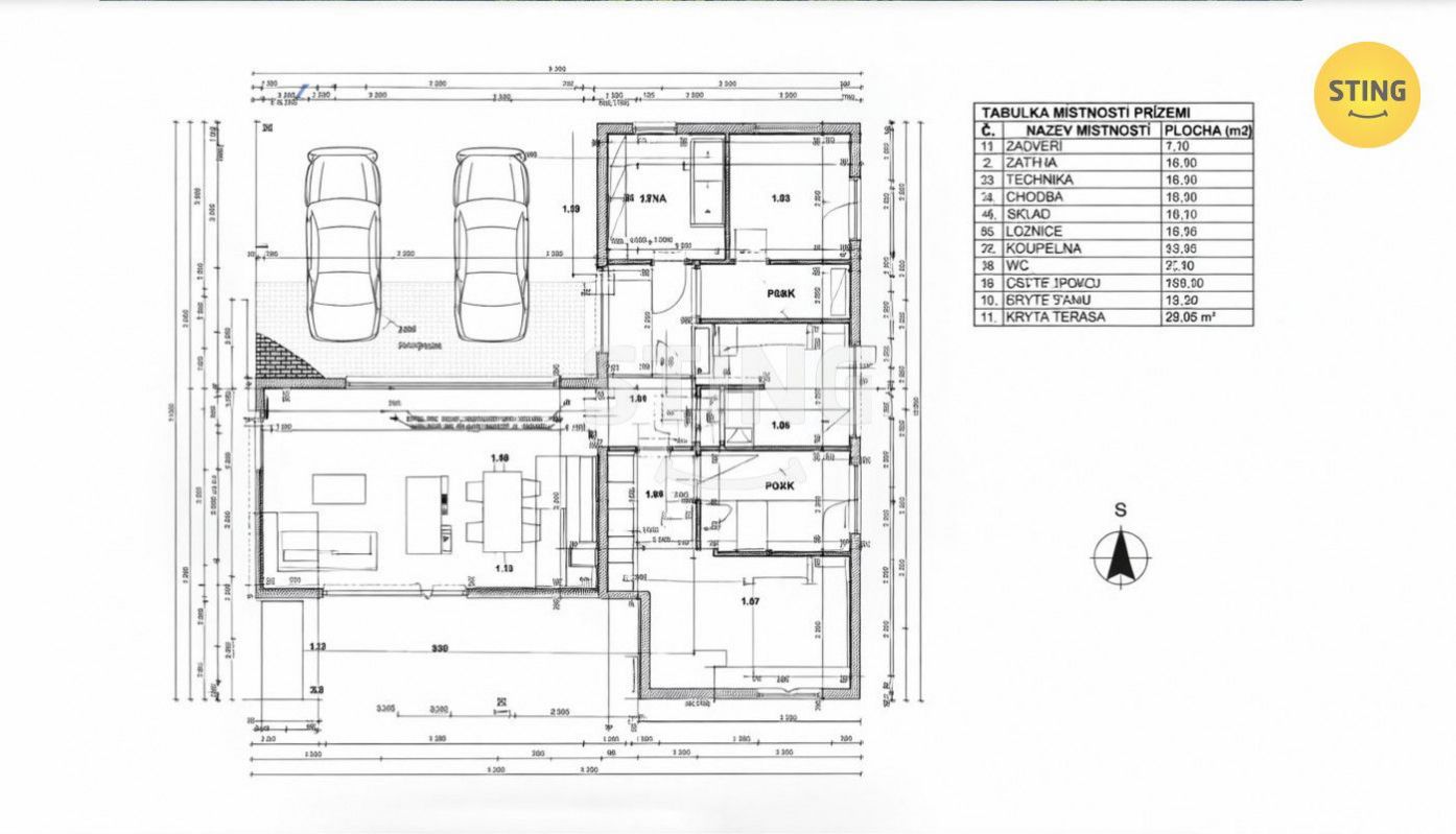
Nabízíme k prodeji samostatně stojící přízemní rodinný dům 3+kk s možností úpravy na 4+kk o celkové užitné ploše 101 m, situovaný na pozemku o celkové výměře 1321 m na Královéhradecku. Nemovitost byla zkolaudována v roce 2018 a představuje moderní dřevostavbu s nízkou energetickou náročností (třída B). Dispozice domu je navržena s důrazem na komfort a praktičnost. Kromě tří obytných místností nabízí také dvě další místnosti vhodné například jako pracovna či sklad. Interiér je řešen designově a funkčně, s kvalitními materiály a vybavením na míru. Kuchyňská linka značky Sykora je doplněna vestavěnými spotřebiči značek Electrolux a AEG, včetně parní trouby, vestavěného kávovaru, myčky, závěsné digestoře ELICA AUDREY a lednice. Pracovní deska je z umělého kamene Dekton o tloušťce 6 cm se zapuštěným granitovým dřezem. V obývacím prostoru jsou instalována krbová kamna Vulsini Storch s přisáváním vzduchu a elektrickou regulací. Koupelna je vybavena prvky značek Solitér, Hansgrohe, Puravida a Alessi, včetně walk-in sprchy a toalety TECE se sprškou a odsáváním zápachu. Interiér doplňují bezfalcové dveře Sapeli Elegant s kováním Tupai Dedos, designové osvětlení s dálkovým ovládáním ENIKA, dotykové vypínače ROON a vestavěné skříně na míru. Technický stav domu je velmi dobrý, střecha je rovná s PVC fólií a kvalitní izolací, okna jsou hliníková trojskla Schüco včetně velkoformátových HS portálů v obývacím pokoji a ložnici, dvě velkoformátová střešní okna s dálkovým ovládáním a dešťovým senzorem. Podlahy jsou kombinací vinylu a dlažby. Vytápění zajišťují nízkonákladové elektrické rohože, teplá voda je připravována bojlerem o objemu 160 litrů. Dům je připojen na veškeré inženýrské sítě včetně vodovodu, elektřiny a septiku s biologickým filtrem. Bezpečnost zvyšuje kamerový systém EUFY a elektronická zabezpečovací signalizace. Exteriér domu nabízí rozsáhlou zahradu s maximálním soukromím, zatravněnou plochou a pečlivě navrženou zelení včetně bambusu podle návrhu zahradního architekta. Součástí je bioklimatická hliníková pergola o velikosti 24 m s otočnými lamelami a elektrickými roletami se senzory proti dešti a větru, která umožňuje komfortní relaxaci za každého počasí. K dispozici je také vyhřívaný bazén s vířivkou Canadian Spa Mollus XXL o rozměrech 10 m s pískovou filtrací a osvětlením. Terasa kolem bazénu je z materiálu Woodplastic a Terafest premium, doplněná o betonové a kamenné povrchy Piedra. Pro parkování slouží kryté stání pro dvě vozidla, pozemek je oplocen gabionovým plotem s elektrickou bránou a videotelefonem. Na zahradě se nachází také dřevník Korten, ohniště a zahradní domek o velikosti 14 m s regálovým systémem. Nemovitost se nachází v tiché slepé ulici, která je zároveň soukromou cestou, v bezprostřední blízkosti centra obce Kunčice (cca 500 m). Lokalita nabízí klidné a bezpečné prostředí s dobrou dostupností do nedalekých Nechanic, kde je kompletní občanská vybavenost včetně základní školy, školky, obchodu, pošty, restaurací a kaváren. Dálnice PrahaHradec Králové je vzdálena přibližně 10 km, což zajišťuje pohodlné spojení do větších měst. Tento dům je vhodný pro zájemce hledající kvalitní, moderní a kompletně vybavené bydlení v klidné lokalitě s dostatkem soukromí a možností relaxace v přírodním prostředí. V případě zájmu o prohlídku této výjimečné nemovitosti nás neváhejte kontaktovat. V případě více zájemců si majitel vyhrazuje právo prodat nejvýhodnější nabídce. Do konce dubna 2026 nabízíme prostřednictvím našeho partnera úrokové sazby od 4,69 % p.a. Více informací Vám sdělí náš specialista na prohlídce. <a href="https://www.eurobydleni.cz/domy/rodinny-dum/mlada-boleslav/obec-klaster-hradiste-nad-jizerou/prodej/"><strong>Prodej rodinného domu Klášter Hradiště nad Jizerou</strong></a>
Prodej podílu 1/3 rodinného domu v Hradci Králové - Plácky
Nabízíme k prodeji podíl ideální 1/3 řadového rodinného domu se zahradou a garáží v klidné části města Hradce králové - Plácky, ul. Kydlinovská.…
Prodej, Rodinný dům, Hradec Králové
Nabízíme k prodeji rodinný dům, situovaný v ulici Kladská, Slezské Předměstí, Hradec Králové. Tento dům je určený ke kompletní rekonstrukci, což…
Prodej rodinného domu Hradec Králové na Eurobydleni.cz